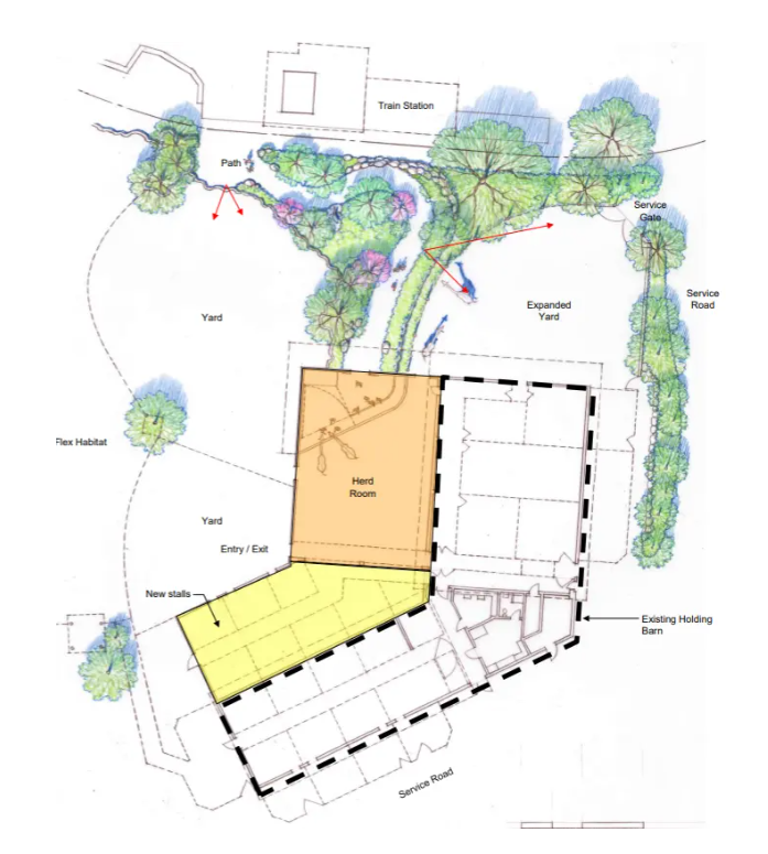
Utah’s Hogle Zoo will be breaking ground on an exciting project next fall to expand its giraffe and hoofstock barn in the African savanna exhibit. This innovative $6 million project will provide new healthcare features, more room for the animals to roam, and an indoor feeding area for up-close encounters year-round.
Every dollar helps us build a better future for wildlife and for generations of wildlife champions inspired by them.
A new place to eat
Help bring zoo guests eye-to-eye with giraffes, no matter the season.
More care space
Enhanced the wellbeing for all savanna animals by helping us with their hoofcare.
Room to roam
Larger habitat space to support easier movement for zebras, ostriches, and female giraffes and calves, helping reduce slips and injuries.
Where the magic happens
Each summer, more than 25,000 guests participate in giraffe feeding experiences at Hogle Zoo, forging meaningful moments with these gentle giants. Guided by our knowledgeable staff and volunteers, these up-close encounters spark curiosity and deepen understanding of giraffe conservation.
To expand these opportunities, Hogle Zoo is enhancing the giraffe and hoofstock barn with a new indoor giraffe feeding area. This space will provide year-round access for guests to engage with giraffes in every season, supporting the wellbeing of the animals in our care while strengthening conservation connections.
The expansion also supports the long-term growth of our giraffe and zebra herds and reinforces our mission to inspire stewardship of the natural world. By making impactful, up-close experiences available year-round, we’re helping guests of all ages become champions for wildlife.